-
- Tổng tiền thanh toán:

CHỒNG XÂY NHÀ TẶNG VỢ ĐỂ TỔ CHỨC ĐÁM CƯỚI
Đăng bởi trangnhadep.com vào lúc 14/05/2021
Quen nhau từ lớp 10, hai vợ chồng đã sống chung và có ba con nhưng chưa tổ chức đám cưới chính thức.
Năm ngoái, họ định tổ chức đám cưới nhưng người vợ không tìm được địa điểm ưng ý. Người chồng nảy ra ý tưởng xây nhà để tổ chức đám cưới và đặt hàng kiến trúc sư căn nhà hai tầng có khuôn viên sân vườn rộng gần 300 m2.
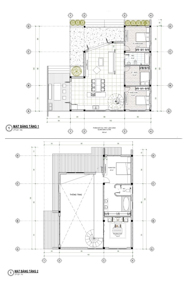
Công trình tọa lạc trên mảnh đất 400 m2 tại Thủy Nguyên, diện tích xây dựng chỉ chiếm 120 m2. Với phần sân vườn lớn, gia chủ đủ chỗ tổ chức tiệc cưới.
Bên trong, công năng nhà gồm một khách bếp thông tầng, ba phòng ngủ con, một phòng ngủ master và một phòng thờ.
Khoảng thông tầng và hệ vách kính lớn của căn nhà có tác dụng cả về thẩm mỹ lẫn công năng. Chúng vừa giúp phòng khách và phòng bếp vừa thoáng đãng, nghệ thuật hơn vừa đưa ánh sáng, gió vào từng ngóc ngách ngôi nhà. Bên cạnh đó, nhờ khoảng thông tầng mà các thành viên gia đình dễ dàng tương tác với nhau.
Để tăng kết nối giữa con người với nhau, phòng bếp được bố trí hệ cửa kính nhìn thẳng ra sân vườn cho bố mẹ tiện quan sát con cái vui chơi bên ngoài.
Gia chủ muốn khu vực sinh hoạt chung có thiết kế mở để thường xuyên kết nối với con cái
Phòng ngủ master lấy cảm hứng từ phong cách đồng quê ở Châu Âu. Thay vì tông màu sáng như các không gian khác, phòng ngủ master sử dụng chủ yếu màu nâu gỗ cho từ hệ tủ, cửa, rèm đến trần nhà và các hệ viền xung quanh.
Phòng tắm master được thiết kế theo kiểu không gian mở kết hợp với đồ nội thất độc đáo như lavabo trụ tròn. Sàn giật cấp để rải sỏi, tạo cho gia chủ cảm giác gần gũi với thiên nhiên.
Không gian phòng ngủ master gợi nhớ phong cách đồng quê châu Âu
Để kịp bàn giao cho chủ nhà, ngôi nhà được hoàn thiện gấp rút. Quá trình từ thiết kế đến lúc gia chủ chuyển vào ở chỉ vỏn vẹn ba tháng với chi phí 2,5 tỷ đồng bao gồm cả nội thất.
Tuy làm gấp để có địa điểm tổ chức tiệc nhưng đám cưới của họ vẫn chưa thể diễn ra do Covid-19.
Theo vnexpress.net
Một số hình ảnh công trình: